二、日興動力科技柴油發電機組并機優勢
日興動力系列并車柜控制系統具備了并機必要的功能,包括自動負荷分配、自動并車、軟性卸載、軟性加載、零功率分閘、易于維修模塊式組合、必要故障保護顯示、液晶功率顯示及微電腦處理器等。在日興動力系列并車柜控制系統中,負荷可作有功功率和無功功率分配。線路及控制系統簡單,提供穩定及可靠的并機并網并聯系統。操作員易于操作及控制,顯示屏可提供所有機組必要的中/英文顯示數據。
2.1 并車并網并聯系統的控制核心 控制器模塊






并機并網并聯控制器
控制器是并機并網并聯系統的心臟部分,負責資料的處理并控制各種保護和器件的動作及數據顯示。處理器的設計是為了提供完善系統管理柴油發電機組。控制器的功能包括:
Ø發動機預熱
Ø油門電磁閥控制
Ø發動機啟動控制
Ø功率控制的冷機時間定時器
Ø油壓監測
Ø水溫監測
Ø電池電壓監測
Ø轉速監測
2.2 有功負載控制
快速計算功率的有效值,提供精確的負載控制
用戶可以進入和退出每一種操作模式
根據負載的百分比對機組(最多 32臺)并機進行負載分配(允許額定功率不同的機組按比例平衡有功功率負載)
Ø為保持最佳燃油消耗率,持續運行的機組可以通過遠程改變機組帶載控制
Ø平穩而有效的切換功能(配備切換屏)
2.3 無功負載控制
Ø按比例作無功功率的分配(允許額定功率不同的機組按比例分配無功功率)系統簡單,采用斜率互感器及穩壓調整器控制無功功率并平均分配
Ø自動的發電機起停先后次序(自動模式下)
Ø當負載超過設定值時,自動啟動機組作并機
Ø當負載低于設定值時,控制機組的卸載及停機備用
上述功能可按客戶要求而作系統修改設定
2.4 發電機的保護
Ø電壓過高/低
Ø頻率過高/低
Ø逆功率保護
Ø勵磁失效
Ø過電流
Ø轉速/頻率不匹配
Ø過負載/低負載
2.5 發動機的保護
Ø水溫過高/低
Ø油壓過高/低
Ø超速
Ø起動失敗
2.6 電動空氣開關
用于并機并網并聯系統的發電機并車斷路器為電動式并車控制斷路器,以減少人手操作產生的時間誤差及系統的操作正常。同步追蹤時,
控制器確保機組電壓、相位和頻率在允許誤差范圍內后,提供合閘信號給并車斷路器進行合閘,提高了操作可靠性和安全性。
2.7 調速系統
用于并機并網并聯的機組作有功功率分配。根據速度傳感器( MPU)獲得機組的轉速,將速度信號傳送到并機并網并聯控制器,由控制器經過比較、計算,向對應端口發出控制信號。由負載分配模塊將該標準不固定的控制信號轉化為給電子控制系統的標準固定的控制信號,控制器根據該控制信號控制電子調速器,從而達到精確控制油門的目的。這樣就解決了負載分配中油門調整的安全性、可靠性、精確性的問題。
2.8 斜率互感器(Droop CT)及自動穩壓調壓器( AVR)
并機并網并聯系統中發電機的無功功率負載分配、穩壓由自動調壓器(AVR)及斜率互感器調節。自動調壓器通過改變勵磁電流的大小控制發電機輸出電流大小,從而達到改變交流發電機輸出功率。
三、日興動力并車系統的通信
日興動力并車系統的通信由兩部分組成:機組間的通信和機組計算機(PC)間的通信。
3.1 機組間的通信
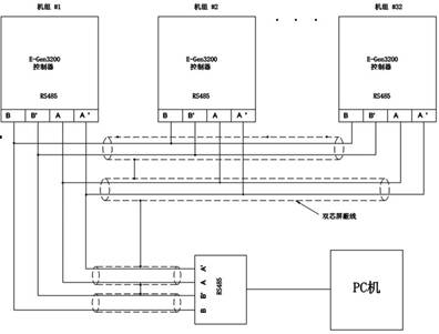
并機系統中的機組之間的起停順序、負載分配、開關閉合時間等各種功能都是通過各并機并網并聯控制器的數據聯機進行通信,然后由控制器進行數據處理并發出相應控制命令,從而實現對各機組的并車控制。通信采用 RS-485網絡,其在并機并網并聯控制器中的聯機示意圖如下:

3.2 機組和 PC間的通信:
并車機組的運行狀況可以由 PC遠程監測,并車機組和 PC間的通信采用 Modbus RS485網絡。Modbus通信協議是公開的;RS-485網絡使用 RS-485通信協議連接線,傳送速度為 9600波特率,無奇偶校驗,有一個停止位,可使用全雙工 /半雙工通訊;計算機端口使用的 RS-232通信協議和 E-Gen3000控制器組成的網絡端口使用的 RS-485通信協議之間需要一個轉換器。該轉換由一外置轉換模塊完成,此模塊將從計算機輸入的 9針 RS-232協議轉換為控制器的 RS-485協議,稱為 RS-232至 RS-485轉換器。在控制器中的聯機示意圖如下:

3.3 原理示意圖如下:

注:①電子調速器、AVR ②相位、相序、電壓、頻率 ③開關閉合信號

四、并機并網并聯控制器標準配置:
4.1 發電機組參數顯示器(液晶顯示)
Ø交流線電壓和相電壓(3相)
Ø交流電流(3相中和每一組)
Ø頻率
Ø千瓦時-總發電度
Ø功率-總功率和每相有功功率
Ø無功功率-總無功功率和每相無功功率
Ø功率因數
Ø母線和發電機之間的相位差(%)
Ø累計運行時間
Ø冷卻水溫度
Ø直流電壓
4.2 母線參數顯示
Ø交流電壓(相)
Ø交流電壓/頻率
4.3 操作控制
Ø停機/自動/手動控制
Ø急停鎖鈕
Ø輕觸式薄膜按鍵
Ø交流電壓調整—手動和自動
Ø柴油機轉速調整—手動和自動
4.4 系統控制
Ø 3次試啟動計數器
Ø冷卻延時
Ø預熱延時
Ø遙控啟動性能
Ø并車檢測繼電器
Ø逆功率保護繼電器
Ø手動并機
Ø自動并機
Ø自動負載分配控制
Ø自動加載和卸載控制
Ø加載次序控制
4.5 停機和報警
Ø高水溫停機
Ø低油壓停機
Ø超速停機
Ø啟動失敗停機
Ø緊急停機操作
Ø逆功率停機
Ø過壓停機
Ø低壓停機或報警
Ø頻率過高停機
Ø頻率過低停機或報警
Ø并車失敗報警
Ø電池電壓不足報警
Ø電池電壓過高報警
Ø發電機失磁報警
Ø備用故障設置輸入口(最多 32個) --低水溫故障-接地故障 --低油位停機或報警 --冷卻水位低停機
4.6 狀態指示器
Ø總開關狀態指示器
Ø故障記錄記憶
五、柴油發電機組并機方案說明
5.1并機控制柜說明
此套并機控制柜為三臺康明斯500KW+400KW+220KW機組并機控制柜,包含三件落地式控制柜一件出線柜,集單臺發電機組啟動控制、并機控制為一體。每臺機組都有足夠的控制功能及獨立的操作能力,即使一臺機組發生故障,另一臺機組依然可以自主運行正常。

使用日興動力系列并機控制系統控制柴油發電機組,具有直觀的操作界面、控制邏輯靈活和輸入輸出端口可擴展性的優點,提供給客戶高效率的操控柴油發電機組平臺,讓客戶在操控柴油發電機組時盡享最先進工業控制技術成果。
此套并機控制柜為兩臺珀金斯威爾信電噴機組400KW+400KW并機控制柜,包含一件落地式控制柜,集單臺發電機組啟動控制、并機控制為一體。每臺機組都有足夠的控制功能及獨立的操作能力,即使一臺機組發生故障,另一臺機組依然可以自主運行正常。

使用日興動力系列并機控制系統控制柴油發電機組,具有直觀的操作界面、控制邏輯靈活和輸入輸出端口可擴展性的優點,提供給客戶高效率的操控柴油發電機組平臺,讓客戶在操控柴油發電機組時盡享最先進工業控制技術成果。
六、并機控制柜控制系統說明
此套并機控制柜為一主一備控制屏,當所有市電均故障時,兩臺機組全部啟動,任一臺機組首先運行正常,先合閘出口斷路器,此臺機組先供電至母排,系統發出一級帶載信號,另一臺機組自動追蹤同步后合閘其出口斷路器,兩臺機組并機運行帶載,系統發出二級帶載信號,用戶可根據負載等級依次投入負載。兩臺機組并機運行 10分鐘(可根據用戶需要調整),并機控制屏的負載管理系統根據啟停機組的負載預設值,當單臺機組的負載小于單臺機組額定容量的35%(可根據用戶需要調整),且持續時間超過1分鐘(可根據用戶需要調整),則備用機組自動冷卻停機并退出并機系統,主用機組帶負載段負載。當系統負載增加,且單臺機組的負載超過單臺機組額定容量的70%(可根據用戶需要調整),并機控制系統自動啟動備用機組,自動追蹤同步,備用機組再次投入并機系統。兩臺機組并機帶載負載段負載。機組并機控制系統等待下一次的負載增減動作而作相應的啟停機組控制。